About 3308 Washington Road
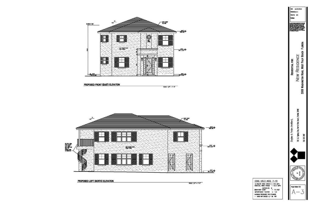
Land With Approved Plans! Take down this 1926 non- contributing home and build your dream house. Plans are available for a 3000 sq ft, 4 bedroom 4-1/2 bath main home.
Features of 3308 Washington Road
| MLS® # | RX-11133400 |
|---|---|
| Price | $2,295,000 |
| Acres | 0.00 |
| Type | Land |
| Sub-Type | Single Family Detached |
| Style | No |
| Status | New |
Community Information
| Address | 3308 Washington Road |
|---|---|
| Area | 5440 |
| Subdivision | SOUTHLAND PARK |
| City | West Palm Beach |
| County | Palm Beach |
| State | FL |
| Zip Code | 33405 |
Amenities
| Utilities | Electric, Public Water |
|---|---|
| View | Garden |
| Is Waterfront | No |
Exterior
| Lot Description | < 1/4 Acre |
|---|
Additional Information
| Zoning | SF14(c |
|---|---|
| Foreclosure | No |
| Short Sale | No |
| RE / Bank Owned | No |
Listing Details
| Office | Douglas Elliman |
|---|
